Zobrazit menu
Stavební firma Ing. Petr Moucha
Byty na prodej
Byty k pronájmu
Výkup nemovitostí
Reference
O nás
Kontakt
Hartigova
Krásné byty na skvělé adrese
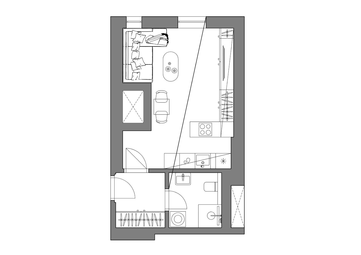
Byt č. 9, 31 m2
1+kk
předsíň
5,12m2
koupelna+wc
4,39m2
obytná kuchyň
21,42m2
celkem
30,93m2
PRODÁNO
mám o byt zájem
Previous
Next
Pár kroků do zeleně
na Vítkov
7
min.
park Parukářka
10
min.
koupaliště Pražačka
20
min.
Mám zájem
o prohlídku
Odeslat